
The new $1.7 housing Tailor Way project will be at the site of the ice skating rink.
Submitted artwork
PITTSTON — When city Mayor Michael Lombardo was re-elected in 2018, he carried on with his agenda from his first run as mayor from 1998 to 2006 by continuing to revitalize the city’s infrastructure as well as create opportunities for housing.
At one time, Mayor Lombardo announced an ambitious, unprecedented initiative to build or refurbish 100 homes in the city. That promise continues today as he announces a $1.7 million housing project that received approval, and according to the Mayor, that project is for 40 new units.
Lombardo said they have received grant money from the Pennsylvania Housing Finance Agency (PHFA) to do the venture.
The project, touted as “Tailor Way,” paying homage to the garment industry that was so strong in the city for decades, will be located on Panama St. at the location of the ice skating rink behind the Convenient Food Mart on N. Main St.
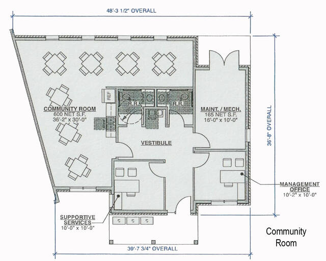
According to Lombardo, the 40 units will consist of one to four bedrooms, complete with one community room.
“This is all a part of ‘Main Street Too,’ consisting of the Fort Pittston housing project, Pittston Lumber project by Hadley Construction, the straightening of the curve on Main St. across from the Convenient Mart, along with the next phase of streetscaping,” Lombardo said.
Streetscaping is a continuation of new curbs, sidewalks and period piece lighting eventually connecting with all phases at the SPC Dale Kridlo Memorial Bridge.
Lombardo said he is pleased to announce two families have been relocated out of Riverview Manor into main street living.
“We’ve moved two families out of Riverview Manor into neighborhood housing the (Pittston) Redevelopment Authority has rehabbed,” Lombardo added. “These families have been long-term residents at Riverview Manor and have demonstrated to be responsible tenants. We wanted to give them an opportunity to a pathway for home ownership.”
Expect Tailor Way construction to start in early 2026.






